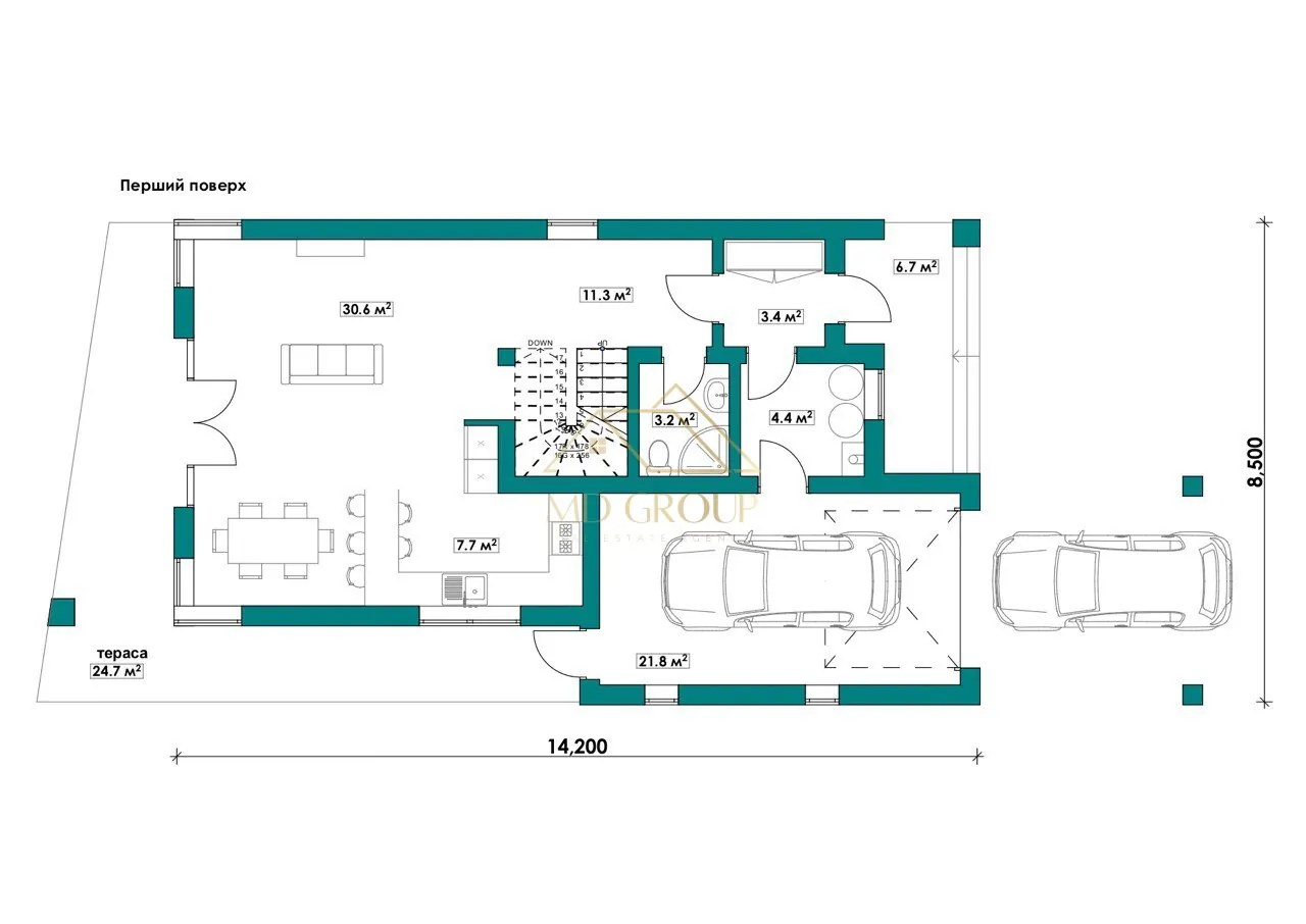
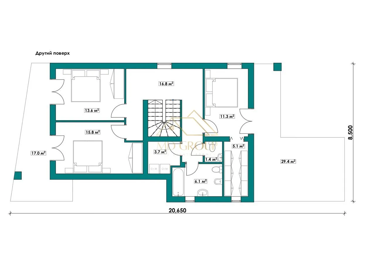
Населений пункт
Івано-Франківськ
К-сть кімнат
3
Поверховість
2
Площа
156м²
Площа кухні
38.3м²
Ділянка
8 сотих
Стан
Сирець
Район
–
Вулиця
–
Забудовник
–
Комунікації
Газ, Електрика, Септик, Свердловина
Опалення
Газ
Утеплення даху
Пінопласт 20 см
Утеплення стін
Пінопласт 10 см
Матеріал стін
Цегла
Черга
–
Сходи
Є
Документи
–
ПРОДАЖ | КОТЕДЖ
$157 000


































