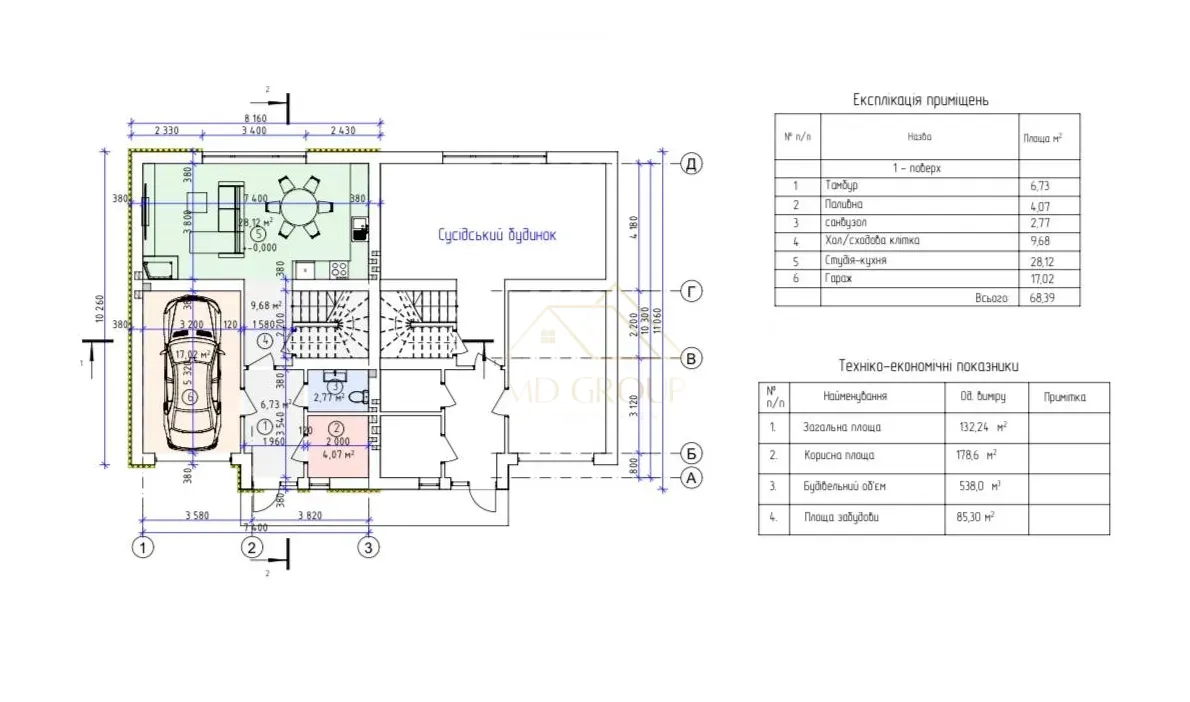
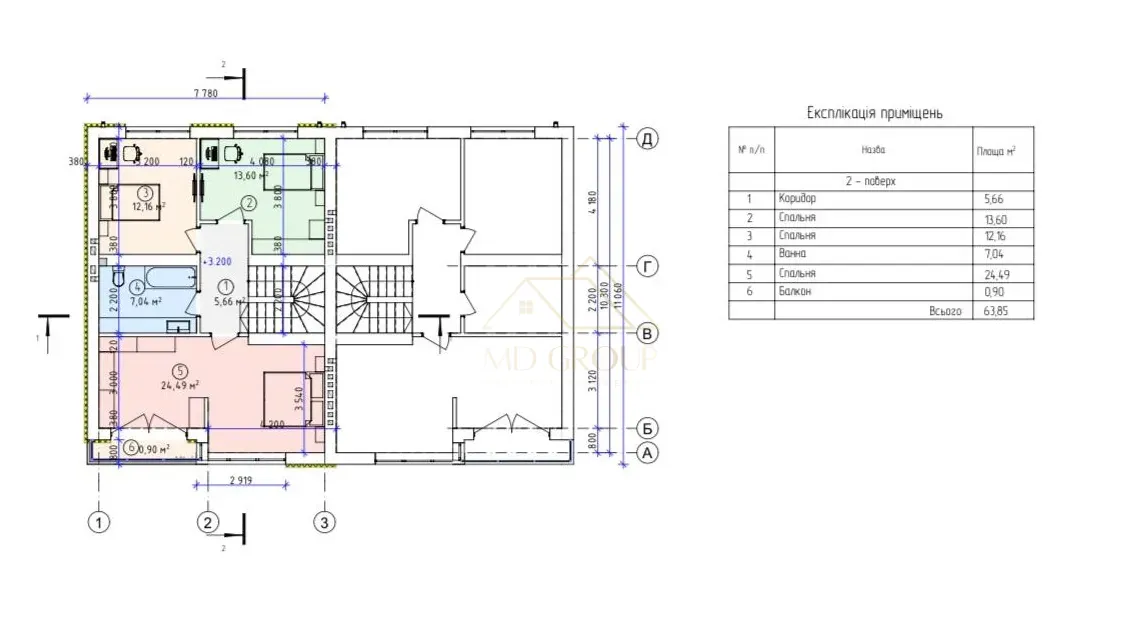
Населений пункт
Драгомирчани
К-сть кімнат
3
Поверховість
2
Площа
130м²
Площа кухні
30.5м²
Ділянка
2.5 сотих
Стан
Сирець
Район
–
Вулиця
–
Забудовник
–
Комунікації
Газ, Електрика, Септик, Свердловина
Опалення
Газ, Електрика
Утеплення даху
моноліт
Утеплення стін
Пінопласт 10 см
Матеріал стін
Цегла
Черга
–
Сходи
Є
Документи
–
ПРОДАЖ | КОТЕДЖ
$98 000



















