Населений пункт
Івано-Франківськ
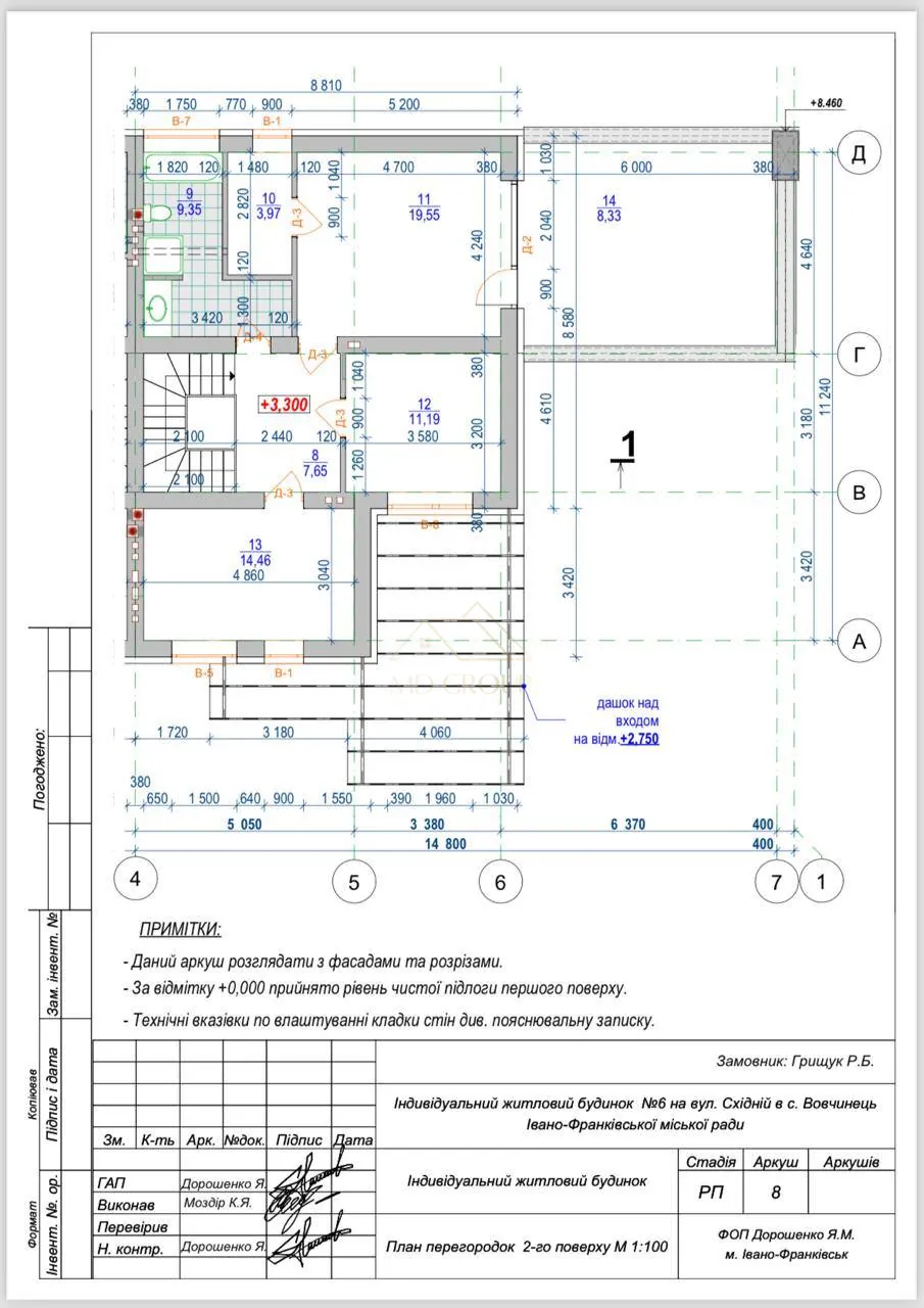
К-сть кімнат
4
Поверховість
2
Площа
160м²
Площа кухні
13.83м²
Ділянка
3 сотих
Стан
Сирець
Район
Вовчинець
Вулиця
Патріарха Володимира
Забудовник
ПП
Комунікації
Газ, Електрика, Центральна каналізація, Центральний водопровід
Опалення
Газ
Утеплення даху
пінопласт-стяжка-мембрана
Утеплення стін
Пінопласт 10 см
Матеріал стін
Цегла
Черга
–
Сходи
Є
Документи
–
ПРОДАЖ | КОТЕДЖ
$140 000












