Населений пункт
Івано-Франківськ
К-сть кімнат
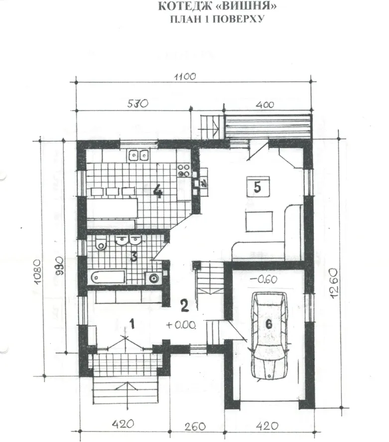
5
Поверховість
2
Площа
169.13м²
Площа кухні
18.37м²
Ділянка
7 сотих
Стан
Зданий сирець
Район
Загвіздя
Вулиця
Заозерна
Забудовник
ПП
Комунікації
Газ, Електрика, Центральна каналізація, Центральний водопровід
Опалення
Газ
Утеплення даху
Немає
Утеплення стін
Пінопласт 10 см
Матеріал стін
Цегла
Черга
–
Сходи
–
Документи
–
ПРОДАЖ | КОТЕДЖ
$98 000















