Населений пункт
Івано-Франківськ
К-сть кімнат
3
Поверховість
2
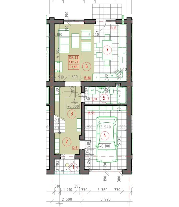
Площа
130м²
Площа кухні
30м²
Ділянка
2 сотих
Стан
Сирець
Район
–
Вулиця
–
Забудовник
–
Комунікації
Газ, Електрика (3 фази • 7 кВт), Центральна каналізація, Центральний водопровід
Опалення
Газ, Електрика
Утеплення даху
Мінеральна вата
Утеплення стін
Пінопласт 10 см
Матеріал стін
Цегла
Черга
6
Сходи
Є
Документи
–
ПРОДАЖ | КОТЕДЖ
$125 000























